Klimatisierte Büro-/Praxisräume in Graz - nahe der KF-UNI: Heinrichstraße 47a
Büro/Praxis mieten in 8010 GrazBüro/Praxis in Graz
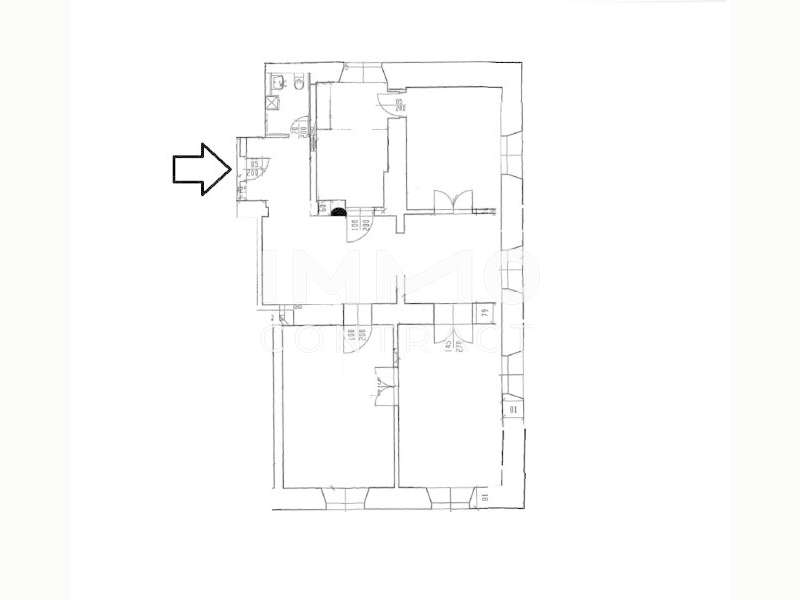
4 Zimmer
Bürofläche: 128 m²
1 seperates WC
Zentralheizung
Teeküche
Parkett
Verfügbar: nach Rücksprache.
Büro/Praxis mieten - Graz
Nettomiete: € 1.182,75
4 Zimmer
4 Zimmer
Klimatisierte Büro-/Praxisräume in Graz - nahe der KF-UNI: Heinrichstraße 47a.
Entdecken Sie Ihre neue Büro- oder Praxisfläche im Herzen von Graz, der charmanten Landeshauptstadt der Steiermark. Diese attraktive Immobilie bietet Ihnen nicht nur eine exzellente Lage, sondern auch den perfekten Raum, um Ihre beruflichen Träume zu verwirklichen.
Mit einer großzügigen Fläche von vier hellen und freundlichen Zimmern, die sich ideal für Büros oder Praxen eignen, schaffen Sie eine einladende Atmosphäre für Ihre Kunden und Mitarbeiter. Der Parkettboden verleiht den Räumen eine elegante Note und sorgt auch für ein angenehmes Raumklima. Die Zentralheizung garantiert zudem eine behagliche Wärme im Winter, die Klimaanlage eine Kühle im Sommer.
Die Lage dieser Immobilie ist mit der hervorragenden Verkehrsanbindung ein Highlight.
Die attraktiven Mietkosten bieten Ihnen ein hervorragendes Preis-Leistungs-Verhältnis für eine so zentrale und gut ausgestattete Immobilie in Graz. Nutzen Sie diese Chance, um Ihren beruflichen Erfolg im pulsierenden Herzen der Steiermark zu starten oder weiter auszubauen.
Zögern Sie nicht und vereinbaren Sie noch heute einen Besichtigungstermin. Lassen Sie sich von der Vielseitigkeit und dem Potenzial dieser Immobilie überzeugen und setzen Sie den ersten Schritt in Ihre erfolgreiche Zukunft!
Wir weisen darauf hin, dass zwischen dem Vermittler und dem zu vermittelnden Dritten ein familiäres oder wirtschaftliches Naheverhältnis besteht.
Der Vermittler ist als Doppelmakler tätig.
Infrastruktur / EntfernungenGesundheit
Arzt <25m
Apotheke <475m
Klinik <525m
Krankenhaus <750m
Kinder & Schulen
Schule <700m
Kindergarten <125m
Universität <150m
Höhere Schule <1.150m
Nahversorgung
Supermarkt <400m
Bäckerei <50m
Einkaufszentrum <1.500m
Sonstige
Geldautomat <25m
Bank <25m
Post <375m
Polizei <800m
Verkehr
Bus <100m
Straßenbahn <625m
Autobahnanschluss <5.600m
Bahnhof <1.125m
Angaben Entfernung Luftlinie / Quelle: OpenStreetMap Diese Büro- bzw. Praxisimmobilie in 8010 Graz bietet eine ideale Lage für vielseitige Nutzung. Die Universität, eine Bank sowie Gastronomie und Bäckerei liegt nur einen Katzensprung entfernt. Öffentliche Verkehrsanbindungen sorgen für optimale Erreichbarkeit und hohe Frequentierung. Ein perfekter Standort für Ihre Vorhaben!
Energieausweisdaten: Heizwärmebedarf: 84.7, Gesamtenergieeffizienz-Faktor: 0.99, HWB Klasse: C, fGEE Klasse: B.
Entdecken Sie Ihre neue Büro- oder Praxisfläche im Herzen von Graz, der charmanten Landeshauptstadt der Steiermark. Diese attraktive Immobilie bietet Ihnen nicht nur eine exzellente Lage, sondern auch den perfekten Raum, um Ihre beruflichen Träume zu verwirklichen.
Mit einer großzügigen Fläche von vier hellen und freundlichen Zimmern, die sich ideal für Büros oder Praxen eignen, schaffen Sie eine einladende Atmosphäre für Ihre Kunden und Mitarbeiter. Der Parkettboden verleiht den Räumen eine elegante Note und sorgt auch für ein angenehmes Raumklima. Die Zentralheizung garantiert zudem eine behagliche Wärme im Winter, die Klimaanlage eine Kühle im Sommer.
Die Lage dieser Immobilie ist mit der hervorragenden Verkehrsanbindung ein Highlight.
Die attraktiven Mietkosten bieten Ihnen ein hervorragendes Preis-Leistungs-Verhältnis für eine so zentrale und gut ausgestattete Immobilie in Graz. Nutzen Sie diese Chance, um Ihren beruflichen Erfolg im pulsierenden Herzen der Steiermark zu starten oder weiter auszubauen.
Zögern Sie nicht und vereinbaren Sie noch heute einen Besichtigungstermin. Lassen Sie sich von der Vielseitigkeit und dem Potenzial dieser Immobilie überzeugen und setzen Sie den ersten Schritt in Ihre erfolgreiche Zukunft!
Wir weisen darauf hin, dass zwischen dem Vermittler und dem zu vermittelnden Dritten ein familiäres oder wirtschaftliches Naheverhältnis besteht.
Der Vermittler ist als Doppelmakler tätig.
Infrastruktur / EntfernungenGesundheit
Arzt <25m
Apotheke <475m
Klinik <525m
Krankenhaus <750m
Kinder & Schulen
Schule <700m
Kindergarten <125m
Universität <150m
Höhere Schule <1.150m
Nahversorgung
Supermarkt <400m
Bäckerei <50m
Einkaufszentrum <1.500m
Sonstige
Geldautomat <25m
Bank <25m
Post <375m
Polizei <800m
Verkehr
Bus <100m
Straßenbahn <625m
Autobahnanschluss <5.600m
Bahnhof <1.125m
Angaben Entfernung Luftlinie / Quelle: OpenStreetMap Diese Büro- bzw. Praxisimmobilie in 8010 Graz bietet eine ideale Lage für vielseitige Nutzung. Die Universität, eine Bank sowie Gastronomie und Bäckerei liegt nur einen Katzensprung entfernt. Öffentliche Verkehrsanbindungen sorgen für optimale Erreichbarkeit und hohe Frequentierung. Ein perfekter Standort für Ihre Vorhaben!
Energieausweisdaten: Heizwärmebedarf: 84.7, Gesamtenergieeffizienz-Faktor: 0.99, HWB Klasse: C, fGEE Klasse: B.
Preisdetails:
Gesamtmiete Netto: 1.182,75
Gesamtmiete USt: 236,55
Gesamtbelastung Netto: 1.381,15
Betriebskosten Netto: 286,75
Heizkosten Netto: 198,4
Heizkosten USt: 39,68
Summe Miete Netto: 896,-
Summe Miete USt: 179,2
Miete pro m² zzgl. NK: 8,4
Kaution: 3 Bruttomonatsmieten
Provision: 3 Bruttomonatsmieten zzgl. 20% USt.
Lage: Gewerbeimmobilie in 8010 Graz - Heinrichstraße 47a
Diese Büro- bzw. Praxisimmobilie in 8010 Graz bietet eine ideale Lage für vielseitige Nutzung. Die Universität, eine Bank sowie Gastronomie und Bäckerei liegt nur einen Katzensprung entfernt. Öffentliche Verkehrsanbindungen sorgen für optimale Erreichbarkeit und hohe Frequentierung. Ein perfekter Standort für Ihre Vorhaben!











