Elegante Bürofläche in historischem Rathausviertel - U2 Rathaus
Büro/Praxis mieten in 1010 WienBüro/Praxis in Wien
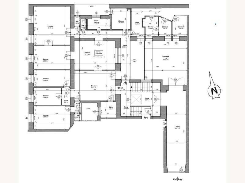
10 Zimmer
Nutzfläche: 277,31 m²
2 seperate WC
Lift
Abstellraum
Fliesen
Parkett
Verfügbar: ab sofort.
Büro/Praxis mieten - Wien
Nettomiete: € 3.722,58
Nutzfläche: 277,31 m²
10 Zimmer
Nutzfläche: 277,31 m²
10 Zimmer
Elegante Bürofläche in historischem Rathausviertel - U2 Rathaus.
Elegante Bürofläche im historischen Rathausviertel – repräsentativer Standort nahe Rathauspark und Parlament
VIDEORUNDGANG
LINK VIDEORUNDGANG: https://storage.justimmo.at/video/1080p/3ZGFmvgEkCEm1PiWDJabh5.mp4
Zur Untervermietung gelangt eine großzügige und repräsentative Bürofläche in erstklassiger Lage des historischen Rathausviertels, nur wenige Schritte vom Rathauspark und dem Parlament entfernt. Die Umgebung zeichnet sich durch ihre prestigeträchtige Architektur, hervorragende Infrastruktur sowie eine ausgezeichnete öffentliche Anbindung aus und zählt zu den begehrtesten Geschäftsadressen Wiens.
Die rund 277,31m² große Nutzfläche befindet sich im Hochparterre eines gepflegten Altbaus und ist komfortabel über einen Personenaufzug erreichbar. Die derzeitige Raumstruktur umfasst ca. 10 Zimmer, welche teilweise durch Trockenbau flexibel adaptierbar sind und somit individuell an unterschiedliche Nutzungskonzepte angepasst werden können.
Dank der großzügigen Raumaufteilung eignet sich die Fläche ideal für Büros, Kanzleien, Ordinationen, ein Ärztezentrum oder andere Dienstleistungsunternehmen, die einen repräsentativen Standort mit funktionaler Infrastruktur suchen.
Flächenübersicht:
-) Nutzfläche: ca. 277,31m²
-) Räume: ca. 10 Zimmer (teilweise flexibel gestaltbar)
-) 2 WCs
-) Serverraum / Netzwerkverkabelung vorhanden
Öffentliche Verkehrsanbindung - fußläufig
-) U2 Rathaus: ca. 2 Min.
-) Straßenbahnlinie Nr.: 2 "Rathaus" – ca. 2 Min
-) Straßenbahnlinie Nr.: 1, 2, 71, D "Parlament" – ca. 5 Min
Konditionen:
netto Untermietzins: EUR 3.250,- / Monat
netto Betriebskostenakonto: EUR 441,20 / Monat
netto Lift-Betriebskostenakonto: EUR 31,38 / Monat
netto Gesamtuntermiete: EUR 3.722,58 zzgl. 20% USt. / Monat
Kaution: 3BMM
Provision: 3BMM zzgl. 20% USt.
Kontakt
Für Fragen und Besichtigungstermine kontaktieren Sie Herrn Georg Zoltan, MSc unter 0676 88 03 03 01 oder georg.zoltan@plech.at
Infrastruktur / EntfernungenGesundheit
Arzt <500m
Apotheke <500m
Klinik <1.000m
Krankenhaus <1.500m
Kinder & Schulen
Schule <500m
Kindergarten <1.000m
Universität <500m
Höhere Schule <500m
Nahversorgung
Supermarkt <500m
Bäckerei <500m
Einkaufszentrum <1.500m
Sonstige
Geldautomat <500m
Bank <500m
Post <500m
Polizei <500m
Verkehr
Bus <500m
U-Bahn <500m
Straßenbahn <500m
Bahnhof <500m
Autobahnanschluss <3.500m
Angaben Entfernung Luftlinie / Quelle: OpenStreetMap
Energieausweisdaten: Heizwärmebedarf: 353, Gesamtenergieeffizienz-Faktor: 3.55, HWB Klasse: G, fGEE Klasse: F.
Elegante Bürofläche im historischen Rathausviertel – repräsentativer Standort nahe Rathauspark und Parlament
VIDEORUNDGANG
LINK VIDEORUNDGANG: https://storage.justimmo.at/video/1080p/3ZGFmvgEkCEm1PiWDJabh5.mp4
Zur Untervermietung gelangt eine großzügige und repräsentative Bürofläche in erstklassiger Lage des historischen Rathausviertels, nur wenige Schritte vom Rathauspark und dem Parlament entfernt. Die Umgebung zeichnet sich durch ihre prestigeträchtige Architektur, hervorragende Infrastruktur sowie eine ausgezeichnete öffentliche Anbindung aus und zählt zu den begehrtesten Geschäftsadressen Wiens.
Die rund 277,31m² große Nutzfläche befindet sich im Hochparterre eines gepflegten Altbaus und ist komfortabel über einen Personenaufzug erreichbar. Die derzeitige Raumstruktur umfasst ca. 10 Zimmer, welche teilweise durch Trockenbau flexibel adaptierbar sind und somit individuell an unterschiedliche Nutzungskonzepte angepasst werden können.
Dank der großzügigen Raumaufteilung eignet sich die Fläche ideal für Büros, Kanzleien, Ordinationen, ein Ärztezentrum oder andere Dienstleistungsunternehmen, die einen repräsentativen Standort mit funktionaler Infrastruktur suchen.
Flächenübersicht:
-) Nutzfläche: ca. 277,31m²
-) Räume: ca. 10 Zimmer (teilweise flexibel gestaltbar)
-) 2 WCs
-) Serverraum / Netzwerkverkabelung vorhanden
Öffentliche Verkehrsanbindung - fußläufig
-) U2 Rathaus: ca. 2 Min.
-) Straßenbahnlinie Nr.: 2 "Rathaus" – ca. 2 Min
-) Straßenbahnlinie Nr.: 1, 2, 71, D "Parlament" – ca. 5 Min
Konditionen:
netto Untermietzins: EUR 3.250,- / Monat
netto Betriebskostenakonto: EUR 441,20 / Monat
netto Lift-Betriebskostenakonto: EUR 31,38 / Monat
netto Gesamtuntermiete: EUR 3.722,58 zzgl. 20% USt. / Monat
Kaution: 3BMM
Provision: 3BMM zzgl. 20% USt.
Kontakt
Für Fragen und Besichtigungstermine kontaktieren Sie Herrn Georg Zoltan, MSc unter 0676 88 03 03 01 oder georg.zoltan@plech.at
Infrastruktur / EntfernungenGesundheit
Arzt <500m
Apotheke <500m
Klinik <1.000m
Krankenhaus <1.500m
Kinder & Schulen
Schule <500m
Kindergarten <1.000m
Universität <500m
Höhere Schule <500m
Nahversorgung
Supermarkt <500m
Bäckerei <500m
Einkaufszentrum <1.500m
Sonstige
Geldautomat <500m
Bank <500m
Post <500m
Polizei <500m
Verkehr
Bus <500m
U-Bahn <500m
Straßenbahn <500m
Bahnhof <500m
Autobahnanschluss <3.500m
Angaben Entfernung Luftlinie / Quelle: OpenStreetMap
Energieausweisdaten: Heizwärmebedarf: 353, Gesamtenergieeffizienz-Faktor: 3.55, HWB Klasse: G, fGEE Klasse: F.
Preisdetails:
Gesamtmiete Netto: 3.722,58
Gesamtmiete USt: 744,52
Gesamtbelastung Netto: 3.722,58
Betriebskosten Netto: 441,2
Sonstige Kosten Netto: 31,38
Sonstige Kosten USt: 6,28
Summe Miete Netto: 3.250,-
Summe Miete USt: 650,-
Miete pro m² zzgl. NK: 11,72
Kaution: 3 Bruttomonatsmieten
Provision: 3 Bruttomonatsmieten zzgl. 20% USt.
Lage: Gewerbeimmobilie in 1010 Wien
Lageangabe nur ungefähr, die genaue Adresse erfahren Sie beim Anbieter der Immobilie.Region: U2 Rathaus - Stadiongasse
















