Vielseitige Büroflächen in zentraler Lage
Büro/Praxis mieten in 9020 Klagenfurt am WörtherseeBüro/Praxis in Klagenfurt am Wörthersee
4 Zimmer
3 Badezimmer
Nutzfläche: 138 m²
3 seperate WC
Fernwärme
Parkplatz
Fliesen
Laminat
Verfügbar: ab sofort.
Büro/Praxis mieten - Klagenfurt am Wörthersee
Miete: auf Anfrage
Nutzfläche: 138 m²
4 Zimmer
Nutzfläche: 138 m²
4 Zimmer
Vielseitige Büroflächen in zentraler Lage.
Schöne Büroräumlichkeiten in zentraler Lage
Gut aufgeteilte Büroräumlichkeiten mit vielseitigen Nutzungsmöglichkeiten in der Lastenstraße. Diese heben sich sowohl durch die gute Erreichbarkeit als auch die frequentierte Lage hervor. Derzeit sind Büroflächen im 1. Obergeschoss verfügbar.
Öffentliche PKW-Stellplätze direkt vor dem Haus sind ein wesentlicher Pluspunkt für Kunden. Eine ausgezeichnete infrastrukturelle Versorgung sowie ein breites Angebot an Geschäften des täglichen Bedarfs machen diese zu einem attraktiven Standort.
Flächen:
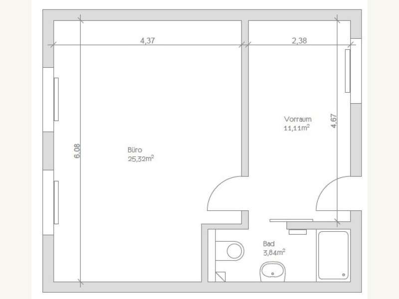
EG: rd. 65,00 m² Nfl.
1.OG: rd. 73,00 m² Nfl.
Die Räumlichkeiten können auch verschieden Aufgeteilt werden, darum bietet diese Anlage viele Nutzungsmöglichkeit.
Ausstattung:
- EDV-Verkabelung tlw. vorhanden
- Beleuchtungskörper
- Holz-Doppelfenster
- Parkett // Fliesen
- ZH-Fernwärme mit Radiatoren
- Wachdienst / Security
- Reinigungsdienst der Allgemeinflächen
Energieausweis ist in Ausarbeitung!
Mietkonditionen:
EG + 1.OG - 138 m² Nfl.:
Miete: EUR 1.035,00 (netto) pro Monat - EUR 7,5 / m²
BK´s: EUR 813,93 (netto) pro Monat, zzgl. Stromkosten
Ges.: EUR 1.848,93 (netto) pro Monat
Je Gewerbefläche gibt es die Möglichkeit Parplätze zu einem Preis von € 80,- (netto) zu mieten.
Kaution: 3 Bruttomonatsmieten
Vermittlungshonorar: lt. Honorarordnung 2-3 Bruttomonatsmieten zzgl. 20 % MWst. (abhängig von der Mietvertragsdauer)
Allgemeiner Hinweis:
Aufgrund der Nachweispflicht gegenüber dem Eigentümer sowie in Entsprechung des FAGG (Fern- und Auswärtsgeschäfte-Gesetz) wird um Verständnis ersucht, dass nur Anfragen mit zumindest vollständigem Namen, E-Mailadresse und Telefonnummer bearbeitet werden. Ohne diese Angaben werden keine weiteren Auskünfte erteilt / keine Objektunterlagen übergeben.
Die angegebenen Daten stammen vom Eigentümer und/oder Dritten und wurden mit Sorgfalt erhoben. Für die Richtigkeit und Vollständigkeit kann jedoch keine Haftung übernommen werden. Zahlenangaben können gegebenenfalls gerundet oder geschätzt sein. Das Anbot ist freibleibend und unverbindlich. Irrtümer und Änderungen sind vorbehalten. Nachdruck/ Vervielfältigung nur mit Genehmigung der Firma Realitäten Perkonig Immobilientreuhand KG. Nähe WIFI-Technikzentrum „ Lastenstraße“
Schöne Büroräumlichkeiten in zentraler Lage
Gut aufgeteilte Büroräumlichkeiten mit vielseitigen Nutzungsmöglichkeiten in der Lastenstraße. Diese heben sich sowohl durch die gute Erreichbarkeit als auch die frequentierte Lage hervor. Derzeit sind Büroflächen im 1. Obergeschoss verfügbar.
Öffentliche PKW-Stellplätze direkt vor dem Haus sind ein wesentlicher Pluspunkt für Kunden. Eine ausgezeichnete infrastrukturelle Versorgung sowie ein breites Angebot an Geschäften des täglichen Bedarfs machen diese zu einem attraktiven Standort.
Flächen:
EG: rd. 65,00 m² Nfl.
1.OG: rd. 73,00 m² Nfl.
Die Räumlichkeiten können auch verschieden Aufgeteilt werden, darum bietet diese Anlage viele Nutzungsmöglichkeit.
Ausstattung:
- EDV-Verkabelung tlw. vorhanden
- Beleuchtungskörper
- Holz-Doppelfenster
- Parkett // Fliesen
- ZH-Fernwärme mit Radiatoren
- Wachdienst / Security
- Reinigungsdienst der Allgemeinflächen
Energieausweis ist in Ausarbeitung!
Mietkonditionen:
EG + 1.OG - 138 m² Nfl.:
Miete: EUR 1.035,00 (netto) pro Monat - EUR 7,5 / m²
BK´s: EUR 813,93 (netto) pro Monat, zzgl. Stromkosten
Ges.: EUR 1.848,93 (netto) pro Monat
Je Gewerbefläche gibt es die Möglichkeit Parplätze zu einem Preis von € 80,- (netto) zu mieten.
Kaution: 3 Bruttomonatsmieten
Vermittlungshonorar: lt. Honorarordnung 2-3 Bruttomonatsmieten zzgl. 20 % MWst. (abhängig von der Mietvertragsdauer)
Allgemeiner Hinweis:
Aufgrund der Nachweispflicht gegenüber dem Eigentümer sowie in Entsprechung des FAGG (Fern- und Auswärtsgeschäfte-Gesetz) wird um Verständnis ersucht, dass nur Anfragen mit zumindest vollständigem Namen, E-Mailadresse und Telefonnummer bearbeitet werden. Ohne diese Angaben werden keine weiteren Auskünfte erteilt / keine Objektunterlagen übergeben.
Die angegebenen Daten stammen vom Eigentümer und/oder Dritten und wurden mit Sorgfalt erhoben. Für die Richtigkeit und Vollständigkeit kann jedoch keine Haftung übernommen werden. Zahlenangaben können gegebenenfalls gerundet oder geschätzt sein. Das Anbot ist freibleibend und unverbindlich. Irrtümer und Änderungen sind vorbehalten. Nachdruck/ Vervielfältigung nur mit Genehmigung der Firma Realitäten Perkonig Immobilientreuhand KG. Nähe WIFI-Technikzentrum „ Lastenstraße“
Preisdetails:
Miete pro m² zzgl. NK: 7,5
Kaution: 3 Bruttomonatsmieten
Lage: Gewerbeimmobilie in 9020 Klagenfurt am Wörthersee
Lageangabe nur ungefähr, die genaue Adresse erfahren Sie beim Anbieter der Immobilie.Region: Nähe WIFI-Technikzentrum
Etage: 1
Nähe WIFI-Technikzentrum „ Lastenstraße“































